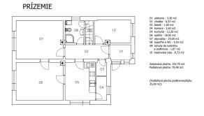
- Izby 4
- Rozloha 117
- Pozemok 600
Novostavba rodinného domu Župčany
Predaj,
Župčany
Virtuálna prehliadka, Holodom, novostavba, všetky Is, betónová cesta
